Ricerca rapida
Codice
Tipologia
Categoria
Città
Zona
Descrizione
Prezzo (da - a)
-
Mq (da - a)
-
Ordine
Cerca
Richiedi informazioni
* Tutti i campi sono obbligatori
Codice: *
Nominativo: *
Telefono: *
Email: *
Dettagli richiesta: *
Autorizzo il trattamento dei miei dati personali in base Regolamento UE n. 679/2016 - Privacy Policy
Invia
<< Torna indietro
SOGGIORNOSALACUCINACUCINABALCONEBALCONECUCINADISIMPEGNOCAMERA 1CAMERA 1CAMERA 2CAMERA 2GUARDAROBABAGNOBAGNO VASCABAGNO CON DOCCIABAGNOFACCIATA NORDFACCIATA SUDAREA ESTERNA 25 MQ

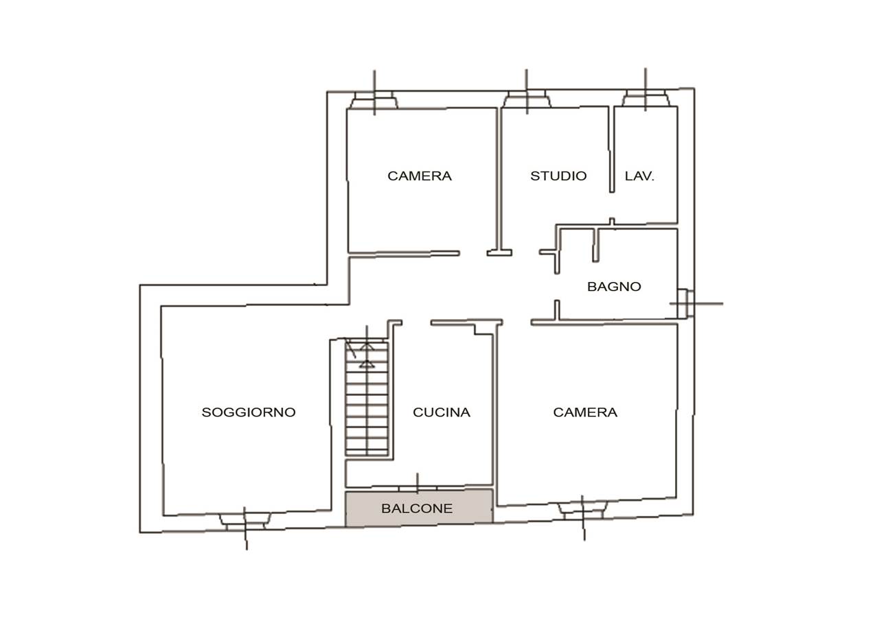
V001280 - Località Ponzate. da ristrutturare

Appartamento

Como, Tavernerio, località Ponzate, Logicasa propone in vendita luminoso appartamento al secondo piano, composto da soggioorno, cucina abitabile con balcone, 2 camere, bagno. studio/guardaroba, locale lavanderia nel quale è possibile realizzare un secondo bagno..
Piccolo giardino di proprietà 25 mq.
All'interno l'appartamento è in buone condizioni, ristrutturato negli anni '80, subito abitabile, è al secondo (ultimo) piano.
Nessuna spesa condominiale, riscaldamento autonomo.
Ampio parcheggio pubblico (non a pagamento) a pochi metri dall'abitazione, accesso carraio al cortile comune. -
Contattaci per visionare l'immobile.

Se desideri vendere o permutare il tuo immobile contattaci allo 031.241193, lo staff Logicasa offre il servizio di analisi di mercato e valutazione gratuita dell'immobile da vendere, inoltre avrai il supporto del Team Logicasa, professionisti a Como dal 1985, e così realizzare la tua vendita velocemente e alle migliori condizioni, anche con permuta.
Inoltre se ti interessa acquistare tramite mutuo, avrai a disposizione il nostro consulente del credito che ti potrà fornire tutte le informazioni e un preventivo personalizzato.

N.B.: Il presente annuncio non costituisce vincolo contrattuale, tutti i dati citati nell'annuncio sono da ritenersi indicativi. L'immobile si intende venduto a corpo e non a misura.
Prezzo
110.000,00 EUR
Mq
110
Classe
G
Locali
4
Bagni
1
Mq Giardino
25
Mq Balcone
3
Stato Immobile
Buono
Posizione
Collina
Panorama
Vista Aperta
Lati Liberi
2
Tipo Soggiorno
Soggiorno
Tipo Cucina
Abitabile
Riscaldamento
Autonomo
Infissi
Legno Doppio Vetro
Persiana
Persiana Legno
Accessori
Doppi Vetri
MAPPA
Via Brianza 8, Tavernerio (CO)
Cookie preference