Home
Chi siamo
Servizi
Contatti
Vendite
Affitti
Capannoni
Turistici
Prestigio
Cantieri
Ricerca rapida
Codice
Tipologia
Vendite
Affitti
Capannoni
Turistici
Prestigio
Cantieri
Categoria
Qualsiasi
1 locale
2 locali
3 locali
4 o più locali
Appartamento
Attico
Azienda Agricola
Baita
Cantina
Capannone
Casa singola
Castello
Crotto
Dépendance
Duplex
Garage
Hotel
Laboratorio
Loft
Magazzino
Maisonette
Mansarda
Negozio
Porzione di Casa
Porzione Villa
Posto Auto
Posto Barca
Rustico/Casale
Stabile / Palazzo
Tenuta
Terreno Agricolo
Terreno Edificabile
Trullo
Ufficio
Villa
Villa Bifamiliare
Villetta schiera
Città
Tutte
Cermenate (CO)
Como (CO)
Guanzate (CO)
Olgiate Comasco (CO)
Oltrona di San Mamette (CO)
Tavernerio (CO)
Veniano (CO)
Villa Guardia (CO)
Zona
Tutte
Descrizione
Prezzo (da - a)
-
Mq (da - a)
-
Ordine
Inserimento
Codice
Categoria
Città
Zona
Prezzo
Metri quadri
Cerca
10 consigli per vendere casa
Documenti per la vendita
Certificazione Energetica ACE
Metti in vendita un immobile
Affitto a riscatto
Valutazioni Stime Perizie
Entra nel team Logicasa
Logicasa Principi Etici
Richiedi informazioni
* Tutti i campi sono obbligatori
Codice: *
Nominativo: *
Telefono: *
Email: *
Dettagli richiesta: *
Autorizzo il trattamento dei miei dati personali in base Regolamento UE n. 679/2016 -
Privacy Policy
Invia
<< Torna indietro
Tweet
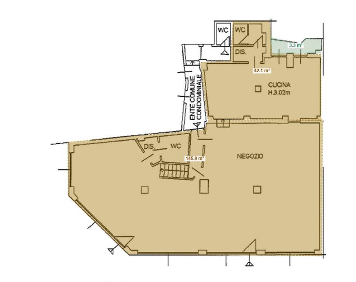
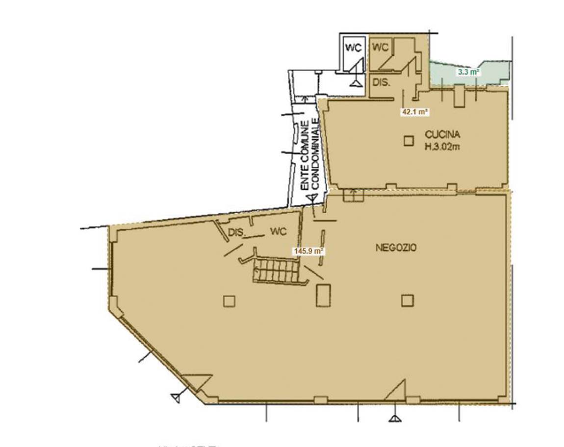
V001281 - Negozio zona Borghi
Ufficio
Logicasa propone in vendita ampio UFFICIO su strada, posizione d'angolo con 5 vetrine.
Al piano terra ha superficie commerciale di 197 mq, collegata internamente con il seminterrato uso magazzino di circa 150 mq.
Libero e subito disponibile, necessita di lavori di ammodernamento per adattarlo alle esigenze del futuro utilizzatore.
Possibilità di adibire l'immobile a studio professionale o medico, Ufficio, show room.
Contattaci per un sopralluogo.
Se desideri vendere o permutare il tuo immobile contattaci allo 031.241193, lo staff Logicasa offre il servizio di analisi di mercato e valutazione gratuita dell'immobile da vendere, inoltre avrai il supporto del Team Logicasa, professionisti a Como dal 1985, potrai così realizzare la tua vendita velocemente e alle migliori condizioni di mercato, anche con permuta.
Inoltre se ti interessa acquistare tramite mutuo, avrai a disposizione il nostro consulente del credito che ti potrà fornire tutte le informazioni e un preventivo personalizzato.
N.B.: Il presente annuncio non costituisce vincolo contrattuale, tutti i dati citati nell'annuncio sono da ritenersi indicativi. L'immobile si intende venduto a corpo e non a misura.
Prezzo
260.000,00 EUR
Mq
200
Classe
G
Locali
3
Mq Box
12
Lati Liberi
2
Arredi
Non Arredato
Acqua Calda
Autonoma
Infissi
Acciaio
Serramenti
Buono
Persiana
Tapparella Metallo
Cantina - Solaio
Cantina
Accessori
Antifurto, Tapparelle Elettriche
MAPPA
via Magenta 8, Como (CO)
Mantieni impostazioni di default X
Uso dei cookies
Questo sito fa uso di cookies. I nostri cookies (propri) e quelli dei nostri Partners (cookies di terzi) servono per poterti offrire un'esperienza unica con noi. Per questo motivo, insieme ai nostri partners, raccogliamo e processiamo informazioni non sensibili (come l'identificatore del tuo dispositivo o le pagine che visiti).
In qualsiasi momento potrai eliminare, modificare o verificare le informazioni che condividi in
Cookie preference
o nella nostra
Cookie Policy
e
Privacy Policy
.
Necessari
Funzionali
Profilazione
Analitici
Accetta tutti
Rifiuta tutti
Accetta selezionati
Cookie preference